Listing provided courtesy of Hunter Lucas of Compass. Last updated 2023-08-07 23:00:39.000000. Listing information © 2026 .
Asking Price: $325,000
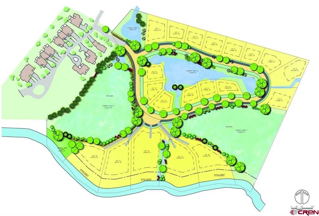
300 Tomichi Creek, Gunnison CO 81230
Community:
This property was built in 0 and is priced at $325,000. Please see the additional details below.
Tomichi Creek is a private gated community located on the banks of Tomichi Creek in Gunnison, Colorado. With only 20 total homesites designated within 25 acres, the low-density community provides lots of open space with homes that complement the beautiful Gunnison Valley. Custom home offerings or building site selection gives you the opportunity to take advantage of existing custom homes or designing and building the custom home you want on a site of your choice. Both homeowners and anglers alike will be pleased with their private access to the common area park set on a small stretch of river. Fish, such as Rainbow and Brown Trout, can be found within the two common area ponds and Tomichi Creek. The development is specifically planned to take advantage of view corridors, affording the community with generous amounts of open space. Living at Tomichi Creek means having quick access to recreational activities such as fishing, biking, hiking, camping, cross-country skiing, and golfing. Dos Rios Golf Course and Hartman’s Rock Recreation Area are both within walking distance. While Tomichi Creek’s community setting brings tranquility in its exclusiveness, residents of Tomichi Creek enjoy quick access to Dos Rios Golf Club, outdoor recreation, and is only 6 minutes from the happenings of downtown Gunnison.













